登別市・室蘭市の不動産売買物件・賃貸アパートの情報は当社にお任せください

HOME >> 住宅情報「一覧」 >> 住宅情報「詳細」

住宅情報 「詳細」 中古建物:室蘭市祝津町4-16-3

コメント:角ログハウス・店舗・事務所に・・・!
   
                              *現況と異なる場合は現況を優先します
  

   

      
リストマーク 物件の動画
準備中
リストマーク 所在地・価格
地 番 室蘭市祝津町4-16-3
住居表示
価 格 890万円
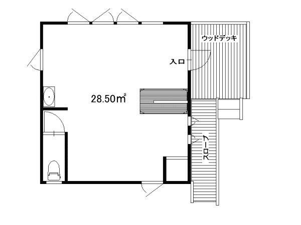
リストマーク 建物詳細
面 積 未登記 28.50u (8.6坪)
構 造 木造軸組工法 
間 取 3LDK
築 年 令和元年1月
付属建物
リストマーク 土地詳細
面 積 借地 180u(54.45坪) *室蘭市 約21万円/年
地 目 雑種地
用途地域 工業地域
建ペイ率 60% 
容積率 200% 
道 路 市道
地勢現況
リストマーク 環境等
交 通 道南バス
校 区
公共設備 上下水道・ソーラーパネル
引き渡し 相談
その他 ・防犯カメラシステム4台(リモート監視可)・エアコン・天外排気システム
・USENシステム・レジスター有り
リストマーク 物件の所在地
リストマーク 仲介物件ですので法定の仲介手数料がかかります
リストマーク 現況と異なる場合は現況を優先致します
Copyright(c) 2011 有限会社 邦商 All Rights Reserved.
〒059-0025 登別市富岸町2-11-9
TEL 0143-86-8300 FAX 0143-86-9967
<営業時間>AM 9:00〜PM 6:00<定休日>日曜日・祝祭日